Angaben
Referenz
V-410
Verfügbarkeit
Nach Absprache
Badezimmer
1
Baujahr
1763
Letzte Renovierungen
2023
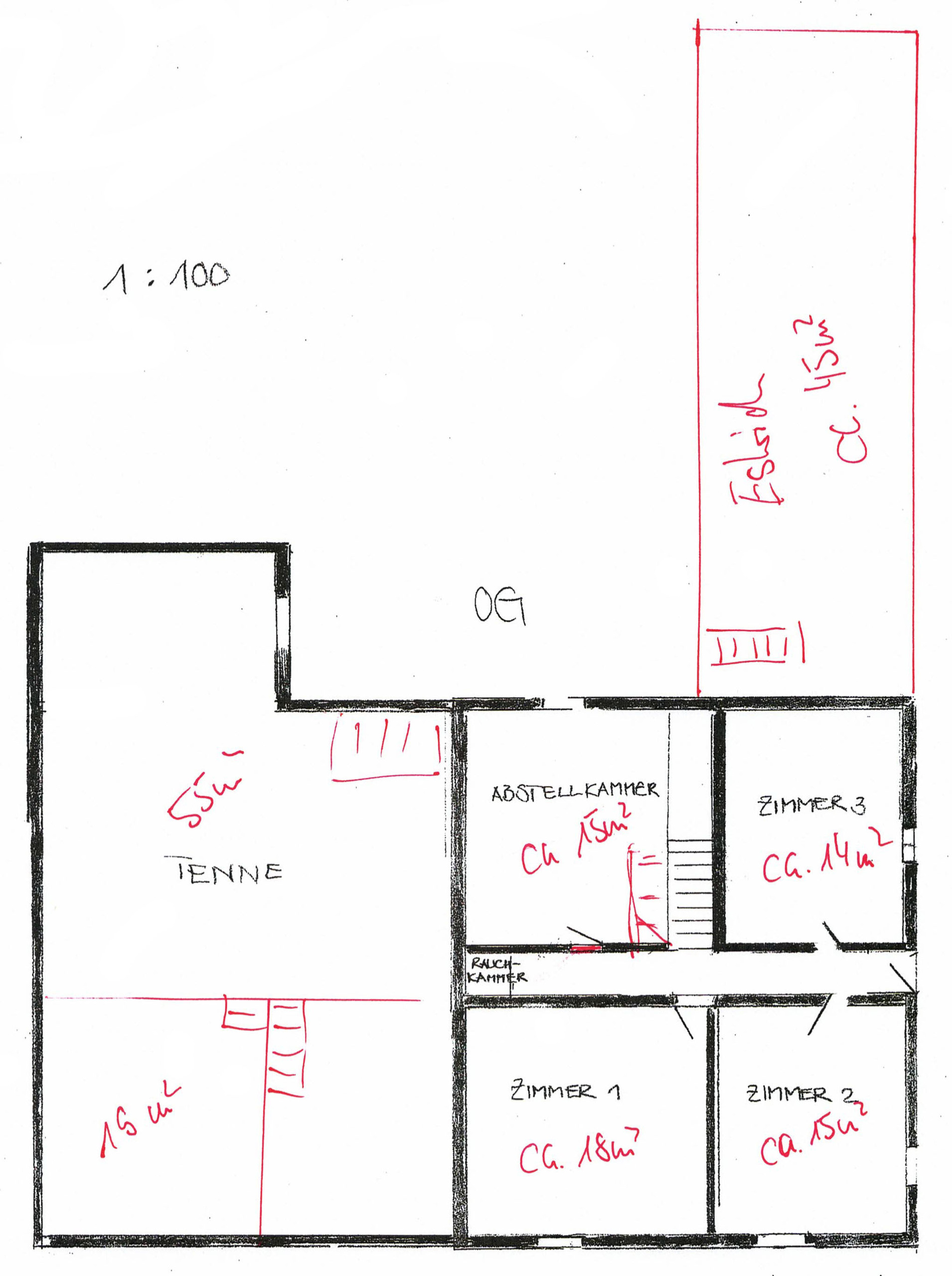
Zimmer
6.5
Schlafzimmer
4
Heizanlagen
Ölheizung, Holzheizung
Wärmeverteilungen
Radiator, Kaminofen
Zustand der Immobilie
Sanierungsbedürftig
Standing
Einfach
Grundstücksfläche
981 m²
Wohnfläche
160 m²
Gebäudevolumen
1'349 m³
Anzahl Parkplätze
Innen
2
Aussen
4



































































